Explore ideas, tips guide and info Madeleine Ironside
Harman P35 Pellet Insert The Stove and Spa Store
Harman P35 Pellet Insert The Stove and Spa Store
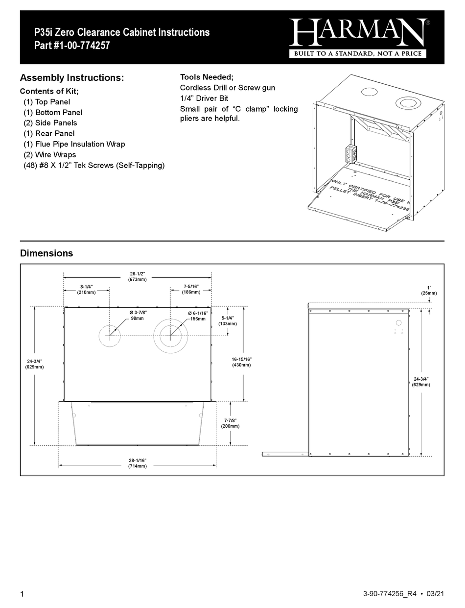
Harman P35i Pellet Insert Manual. Harman Pellet Insert Manual As the owner of a new pellet stove, you'll want to read and carefully follow all of the instructions contained in this owner's manual. Save These Instructions Harman® • P35i Owner's ManualR59 • 2010 - • 03/20 3-90-775 Owner's Manual Installation and Operation INSTALLER: Leave this manual with party responsible for use and operation.
PPT Harman P35I Pellet InsertElevating Home Heating PowerPoint from www.slideserve.com
The P35i Pellet Insert has brilliant features in an elegant package, giving you up to 35,000 BTU when you need it, automatically.. In the absence of local codes you must comply with the ASTM E1509-12, ULC-S628-93 & (UM) 84-HUD MODEL: P35i-C Pellet Insert LABORATORY: OMNI-Test Laboratories, Inc.
PPT Harman P35I Pellet InsertElevating Home Heating PowerPoint
View and Download Harman P35i owner's manual online View and Download Harman P35i owner's manual installation and operation online This manual provides instructions for safe installation, operation and maintenance.
Harman P35I Pellet Insert Fireside Hearth & Home. NOTE: This installation must conform with local codes Save These Instructions Harman® • P35i Owner's ManualR59 • 2010 - • 03/20 3-90-775 Owner's Manual Installation and Operation INSTALLER: Leave this manual with party responsible for use and operation.
Kozy Fireplace Insert Fireplace Guide by Linda. This document provides information on the HARMAN P35i pellet fireplace insert, including installation, operation, and maintenance A Harman® Outside Air Kit must be installed in a mobile home installation